Villa singola in vendita

Latina, Str. Piscina Scura - Borgo Grappa
€ 378.000
4 locali 4 locali
188 Mq 188 Mq
2 bagni 2 bagni

Villa singola in vendita

Latina, Str. Piscina Scura - Borgo Grappa

Descrizione annuncio

Villa singola di nuova costruzione a Borgo Grappa – Latina

Vivere il comfort moderno, immersi nella tranquillità della campagna, oggi si può!

A Borgo Grappa – Latina, in una piacevole zona di campagna, a pochi minuti dalla via principale di collegamento con la città, proponiamo in vendita una villa singola di 188 mq, costruita nel 2018, pensata per chi desidera spazio, privacy e qualità senza rinunciare alla comodità degli spostamenti.

La villa si sviluppa interamente su un unico livello, con affacci diretti sul giardino, creando un dialogo continuo tra interni ed esterni. La tettoia bioclimatica consente di vivere gli spazi all’aperto in ogni stagione, regalando momenti di relax e convivialità.

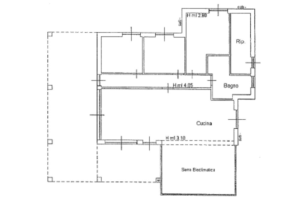
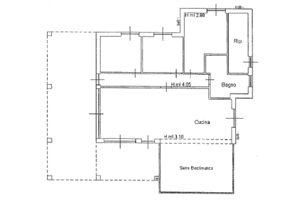
All’interno troviamo un luminoso open space con cucina e sala da pranzo a vista, una confortevole zona salotto, tre camere da letto e due bagni.

Le rifiniture di pregio, la cura dei dettagli e le moderne tecniche di bioedilizia rendono questa abitazione ideale per chi cerca una casa contemporanea, efficiente e accogliente, a pochi minuti dal mare e dalla città.

Una soluzione unica per chi sogna una casa moderna, immersa nel verde ma perfettamente collegata.

Puoi fissare un appuntamento ai numeri 0773.17.100.79 oppure 377.081.3.12 saremo lieti e disponibili per ulteriori informazioni dettagliate.

Queste dichiarazioni servono a chiarire che le informazioni visualizzate sono solo a scopo illustrativo ed informativo e che eventuali accordi contrattuali devono essere stabiliti separatamente e in modo esplicito

Mostra tutto

Nelle vicinanze

Scuole Scuole
Scuola Primaria "Alessandro Manzoni"
2,8 Km
Supermercati Supermercati
Spaccio Asi San Michele
2,8 Km
Ristoranti Ristoranti
Ristoranti
1,6 Km
Azienda Agricola Ganci
1,6 Km
Fogliano
1,8 Km
E20
2,8 Km
Mostra tutto

Caratteristiche

Rif.:
61160462
Piano:
1 di 1 (Piano terra con giardino)
Posti auto:
1
Camere da letto:
3
Arredamento:
Assente
Condizionamento:
Autonomo
Mostra tutto
Prezzo Prezzo
€ 378.000
Rata mutuo Rata mutuo
€ 1.794 / mese
Spese annue Spese annue
€ 20
Proponi il tuo prezzoProponi il tuo prezzo

Classe Energetica

A1
A1
A1
A1
A1
A1
A1
A1
A1
EP globale non rinnovabile:
0.00 kW h/m² anno
EP globale rinnovabile:
0.00 kW h/m² anno
EP invernale del fabbricato:
EP estiva del fabbricato:
Anno di costruzione:
2018
Riscaldamento:
Autonomo
Tipo impianto:
Ad aria
Tipo alimentazione:
GPL

Ti interessa visionare l'immobile?

Fissa un appuntamento  Fissa un appuntamento

Richiedi informazioni

Clicca su Leggi per aprire l'informativa
* Questi campi sono obbligatori

Calcola il tuo mutuo

Semplice e senza impegno
Anticipo

( % )
Mutuo

( % )

pochi semplici passi

inserisci i tuoi dati
Questionario completato
Grazie per aver richiesto un appuntamento senza impegno con un nostro Consulente del Credito e Assicurativo.

Hai inserito correttamente tutti i dati necessari e a breve riceverai una e-mail con un link da convalidare per inviare i tuoi dati.
Affiliato
Studio Immobiliare Marconi Srl
Via Marconi, 21 04014 Pontinia (LT)

Il nostro staff


  • Simone Pellin
    Affiliato

  • Alessio Carturan
    Collaboratore

  • Luana Iaquinandi
    Coordinatrice
Via Marconi, 21 04014 Pontinia (LT)
Zona: Pontinia
Mostra su mappa
Orari: Lun. - Ven.: 09:00 - 13:00 / 15:30 - 19:30 Sab. 09:00 - 13:00 Dom. Chiuso
Affiliato
Studio Immobiliare Marconi Srl
Via Marconi, 21 04014 Pontinia (LT)

2026 Tecnocasa Franchising S.p.A. - P. IVA 08365160152 - Via Monte Bianco 60/A 20089 Rozzano (MI). Ogni agenzia ha un proprio titolare ed è autonoma. Privacy policy | Policy utilizzo | Cookie policy